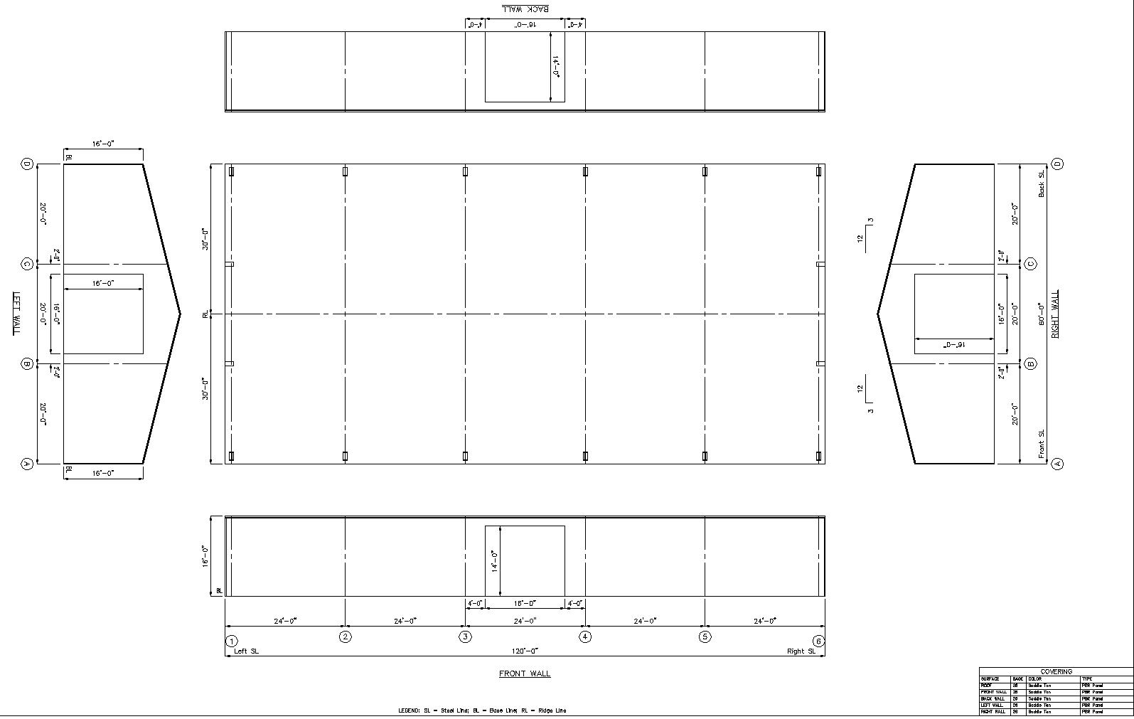
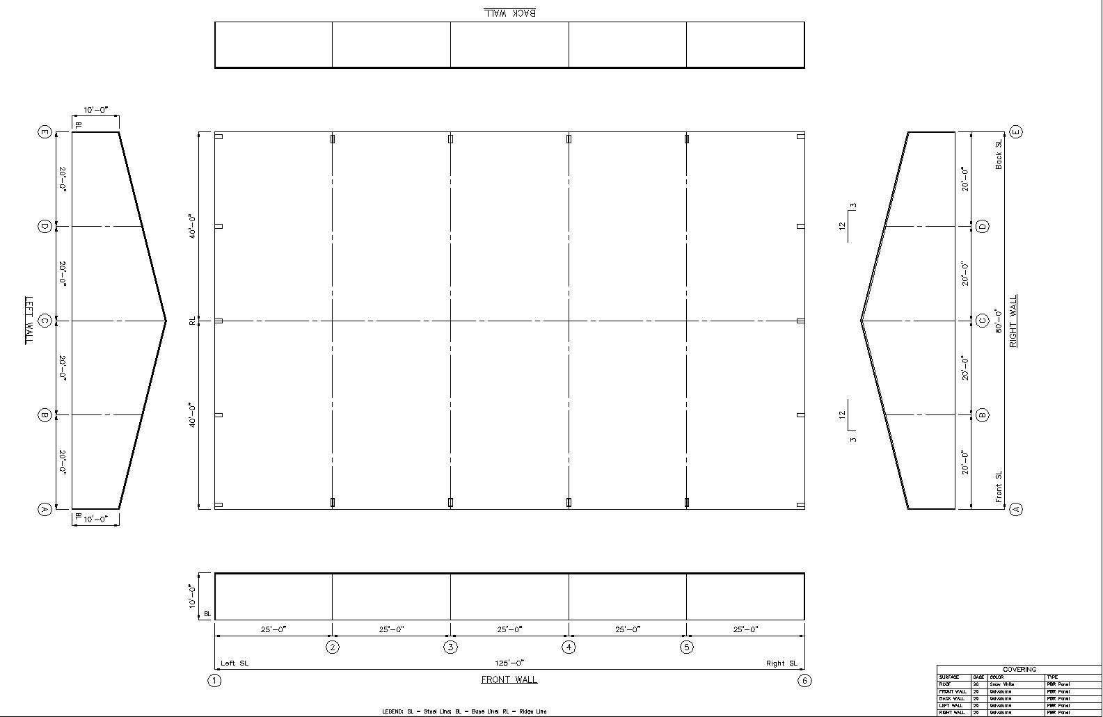
Post frame steel buildings are often used for recreational canopies, commodity storage, solar panel arrays, equipment storage shelters, horse arenas, and livestock shelters. These buildings typically support a roof only and sometimes walls as well, depending on your needs. Post frame buildings allow for spans up to 200 feet wide,any length, and can have either a double or a single sloping roof in various roof pitches. We can fully open all sides of the building allowing for entry of livestock, equipment or other uses. larry@lthsteelstructures.com 770-781-8279.


















































































































































































