Skip to content
Home » Steel Home Framing Kits » The Ellijay

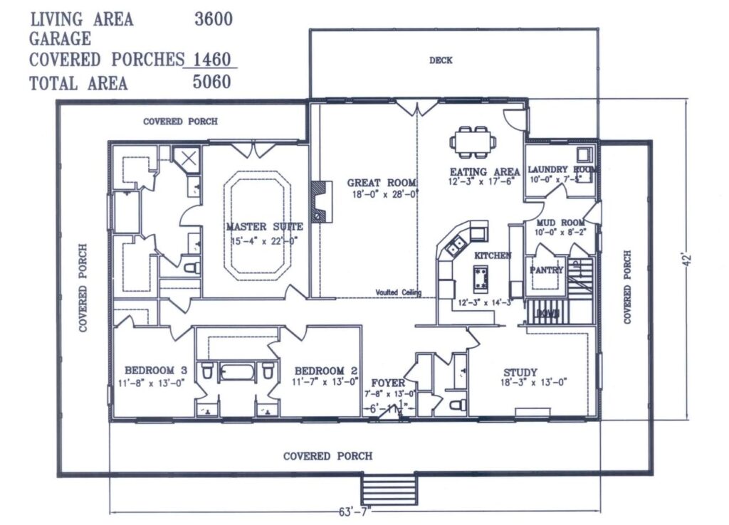
The Ellijay Steel Framing Package

Starting Price:
$111,320
Bedrooms:
3
Bathrooms:
3
Living Area Square Feet
3,600 sq ft
Total Square Feet:
5,060 sq ft

The Ellijay has the “Country” look, with a floor plan designed for the 21st century. It offers an oversize Great Room with covered porches on four sides. The second floor has a loft overlooking the Great Room.
This is the steel framing system only

This Steel Framing Package Includes

Steel Framing IllustrationAll steel framing cut to length: Studs for walls, trusses, headers, joists

Steel Framing Fasteners IllustrationAll Fasteners and hardware: Screws, hat channel, sub fascia material

Steel Framing Plans IllustrationEngineered drawings: seals are available for all 50 U.S. states

Everything you need to Frame your Steel Home
See a detailed list of what's included in this package

Starting Price based on: 5 lb ground snow load & 90 MPH wind load for slab

Options Available: Basement joists, crawlspace joists, higher wind loads higher snow loads, steel roofing and wall panel

No Bolting, No Welding, Cont. US Delivery Included!