Skip to content
Home » Buildings » Page 10

Buildings

35′ x 60′ x 16′ Steel Building for Sale – SELMA, NC 27576

35x60x16 metal building kit for sale. Nice system for the money. Quality fabrication with engineering prints and erecting drawings. Price included freight to the designated area. Includes overhead doors, insulation, entry door, gutters and downspouts, and more. 770-781-8279 larry@lthsteelstructures.com

35′ x 60′ x 16′ Steel Building for Sale – Selma, NC 27576

35x60x16 steel building system kit for sale. 100 mph wind load and 20 lb ground snow load. Building includes freight to the area. Steel entry door, 2 = 8ft x 8ft framed openings on the front sidewall, 1 = 14ft x14 ft framed opening on the front sidewall. 26 guage roof and wall panel, painted trim for rake and eaves. Would make a great automomitive facility. 770-781-8279 larry@lthsteelstructures.com

30′ x 44′ x 12′ Steel Building for Sale – Swink, OK 74761

Rediron steel house kit for sale, price delivered including engineering prints and tax = $ 40,360.00
Complete shell and window and door openings, 26 guage steel roofing, wall and trim panels with quality fasteners. Standard color choices for steel roof, walls and trim. Upgrades available. Finish out this buiding on the inside the way you like. 770-781-8279 larry@lthsteelstructures.com
Included
1. framed openings for windows and doors
2. screw down pbr 26 guage paiinted kynar finish roofing, siding, trim with soffits pbu steel panel
3. lifelong fasteners for roof, these work well for longer life
4. all engineering for this structure, engineered prints, erecting drawings and anchorbolt layout
5. delivery to this location – we can reprice engineering, freight to another area when needed
whats not included
1. no gutters
2. no insulation
3. no interior partition walls
4. no foundation
5. no windows or doors
6. no interior sheetrock or other type of building materials to finish

40′ x 60′ x 12′ Steel Building for Sale – Stateline, NV 89449

40 feet x 60 feet x 12 feet eave height with 4: 12 roof slope for sale. This building is designed for area zeismic. 150 lb per sq ft ground snow load and 105 mph wind load
1= 12 ft x 12 ft framed opening on the endwall
1= steel entry door with hardware.
NO GUTTERS
Standard choice for roof, wall and trim color
Freight included in price to designated area
770-781-8279 larry@lthsteelstructures.com

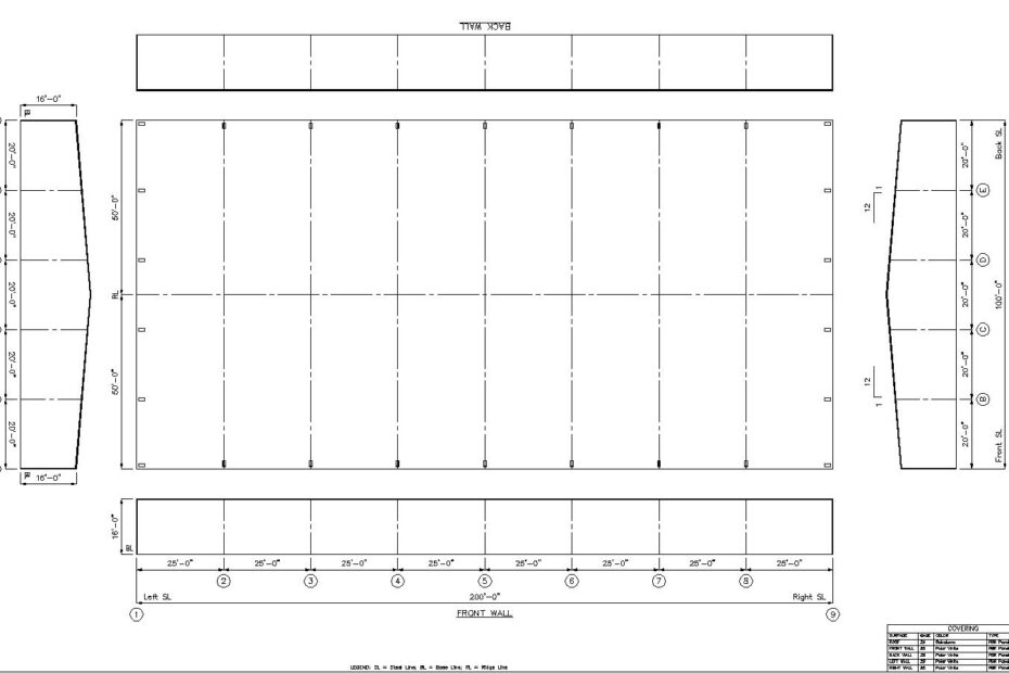
100′ x 200′ x 16′ Steel Building for Sale – Cheyenne, WY 82009

100x200x16 steel building system shell for sale. See PDF file for details. 770-781-8279 larry@lthsteelstructures.com. Freight included to designated building are. Standard color chosice for 26 gauge walls panel and trim, roo PBR panel is galvalume.
Engineering Design Info:
Building Type: Gabled Building
Width: 100′ Length: 200′ Height: 16′ Slope: 1:12
Sidewall Bay Config: 8 bays at 25 ft
Left Endwall: Non-expandable Bearing Frame Right Endwall: Non-expandable Bearing Frame
LEW Column Spacing: 20/20/20/20/20 REW Column Spacing: 20/20/20/20/20
LEW Girt: Bypass REW Girt: Bypass FSW Girt: Bypass BSW Girt: Bypass
Column Shape: Tapered
Code: IBC 2009 Wind Load: 100 Exposure: C
Live Load: 20 Reducible: Yes Ground Snow: 30 Roof Snow: 25
Seismic: Ss = 0.195 S1 = 0.054 Seismic Coefficient: 0.31 Collateral Load: 0.5
Snow Factors: Is = 1.0 Ct = 1.0 Ce = 0.9
Occupancy = Normal Thermal Conditions = Normally Heated/All Others
Snow Exposure = Fully Exposed Roof/Open Terrain
Roof Dead Load = 2 psf

80′ x 200′ x 16′ Steel Building for Sale – CHEYENNE, WY 82009

80x100x16 prefab steel system shell building for sale. See PDf file for details. 770-781-8279 larry@lthsteelstructures.com
Stamndard colro choice on trim and wall panel, 25 guage roof and wall panels. Delivery charge already in price for designated area.
Engineering Design Info:
Building Type: Gabled Building
Width: 80′ Length: 200′ Height: 16′ Slope: 1:12
Sidewall Bay Config: 8 bays at 25 ft
Left Endwall: Non-expandable Bearing Frame Right Endwall: Non-expandable Bearing Frame
LEW Column Spacing: 20 / 20 / 20 / 20 REW Column Spacing: 20 / 20 / 20 / 20
LEW Girt: Bypass REW Girt: Bypass FSW Girt: Bypass BSW Girt: Bypass
Column Shape: Tapered
Code: IBC 2009 Wind Load: 100 Exposure: C
Live Load: 20 Reducible: Yes Ground Snow: 30 Roof Snow: 25
Seismic: Ss = 0.195 S1 = 0.054 Seismic Coefficient: 0.31 Collateral Load: 0.5
Snow Factors: Is = 1.0 Ct = 1.0 Ce = 0.9
Occupancy = Normal Thermal Conditions = Normally Heated/All Others
Snow Exposure = Fully Exposed Roof/Open Terrain
Roof Dead Load = 2 psf

50′ x 100′ x 16′ Steel Building for Sale – Rocky Mount, VA 24151

50x100x16 with 20 ft x 100 ft open lean-to canopy and overhead doors for sale. Call for details on this building, price includes freight to this area. Call for more infomation 770-781-8279 larry@lthsteelstructures.com
Engineering Design Info:
Building Type: Gabled Building
Width: 50′ Length: 100′ Height: 16′ Slope: 3:12
Sidewall Bay Config: 4 bays at 25 ft
Left Endwall: Full-load Expandable Frame Right Endwall: Full-load Expandable Frame
LEW Column Spacing: 15 / 20 / 15 REW Column Spacing: 15 / 20 / 15
LEW Girt: Flush REW Girt: Flush FSW Girt: Bypass BSW Girt: Bypass
Column Shape: Tapered
Code: IBC 2009 Wind Load: 90 Exposure: C
Live Load: 20 Reducible: Yes Ground Snow: 25 Roof Snow: 25
Seismic: Ss = 0.234 S1 = 0.076 Seismic Coefficient: 0.37 Collateral Load: 1
Snow Factors: Is = 0.8 Ct = 1.2 Ce = 0.9
Occupancy = Agricultural Thermal Conditions = Unheated/Maintained Below Freezing
Snow Exposure = Fully Exposed Roof/Open Terrain
Roof Dead Load = 2 psf

35′ x 75′ x 18′ Steel Building for Sale – Rolesville, NC 27591

35x75x18 steel building prefab system for slae. See PDF file for details. freight included to area.
770-781-8279 larry@lthsteelstructures.com
Engineering Design Info:
Building Type: Gabled Building
Width: 35′ Length: 75′ Height: 18′ Slope: 1:12
Sidewall Bay Config: 3 bays at 25 ft
Left Endwall: Non-expandable Bearing Frame Right Endwall: Non-expandable Bearing Frame
LEW Column Spacing: 8 / 19 / 8 REW Column Spacing: 8 / 19 / 8
LEW Girt: Flush REW Girt: Flush FSW Girt: Bypass BSW Girt: Bypass
Column Shape: Tapered
Code: NCBC 2009 Wind Load: 100 Exposure: C
Live Load: 20 Reducible: Yes Ground Snow: 20 Roof Snow: 14
Seismic: Ss = 0.203 S1 = 0.079 Seismic Coefficient: 0.32 Collateral Load: 0.5
Snow Factors: Is = 1.0 Ct = 1.0 Ce = 1.0
Occupancy = Normal Thermal Conditions = Normally Heated/All Others
Snow Exposure = All Other Roof/Terrain Conditions